Bought with Brian Lodel • Keller Williams - Manitowoc
For more information regarding the value of a property, please contact us for a free consultation.
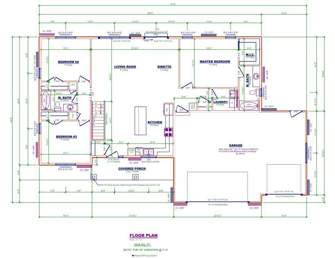
1501 Bristlecone STREET Howards Grove, WI 53083
Want to know what your home might be worth? Contact us for a FREE valuation!

Our team is ready to help you sell your home for the highest possible price ASAP
Key Details
Sold Price $309,900
Property Type Single Family Home
Sub Type Ranch
Listing Status Sold
Purchase Type For Sale
Approx. Sqft 1501-1750
Square Footage 1,629 sqft
Price per Sqft $190
Subdivision Eastern Pines
MLS Listing ID 1701530
Style Ranch
Bedrooms 3
Full Baths 2
Year Built 2020
Annual Tax Amount $1
Tax Year 2019
Lot Size 0.300 Acres
Property Sub-Type Ranch
Property Description
New construction home by Posthuma Homes in Howards Grove! House features 3 bedrooms, 2 bathrooms, 3 car attached garage, 9' ceilings, Kohler fixtures, Quartz counter tops, 7/12 roof pitch, LED lighting, 1st floor laundry room and two panel doors. There is an egress window and plumbing for an additional bathroom in the basement. Additional lots and floor plans available within the Eastern Pines subdivision in Howards Grove. Estimated fall 2020 completion.
Location
State WI
County Sheboygan
Zoning R-1
Rooms
Kitchen Main
Interior
Heating Natural Gas
Cooling Central Air, Forced Air
Equipment Disposal
Exterior
Parking Features Attached, 3 Car
Garage Spaces 3.0
Building
Building Age New Construction
Sewer Municipal Sewer, Shared Well
Structure Type Stone,Brick/Stone,Vinyl
New Construction Y
Schools
Elementary Schools Northview
Middle Schools Howards Grove
High Schools Howards Grove
School District Howards Grove
Others
Special Listing Condition Arms Length
Read Less
Copyright 2025 WIREX - All Rights Reserved
GET MORE INFORMATION




